\2026年2月完成予定/財光寺平屋住宅 5号地 ★仲介手数料無料★
登録日:2025/10/27 最終更新日:2025/10/27
人気の区画整理エリアにタマホーム建築の建売住宅が建築中です。
<タマホームのお家>
*夏は涼しく、冬は暖かく、断熱材で住みやすいお家となっています
*建築の際は不動沈下を防ぐため、全棟地盤調査を実施し、ベタ基礎にて施工しております。
*断熱性や防音性の高いアルミ樹脂複合サッシやLOW-Eペアガラス使用
*地盤保証10年、住宅瑕疵担保責任保険10年、白蟻保証10年、安心のトリプル10年保証
<立地>
*財光寺小学校 徒歩約11分(約830m)、財光寺中学校 徒歩約8分(約590m)
*イオンタウン日向 車で約7分、セブンイレブン 徒歩約7分
*お倉が浜総合公園 車で約5分、財光寺駅 徒歩約10分
お住いに便利なエリアの立地です。
<住宅>
*2026年2月完成予定の平屋住宅です
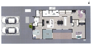
*LDK24.7帖、WIC、シュークローゼットもある平屋住宅です
*車は2台駐車可能、敷地には十分な余裕があります
*コの字住宅の為、自然光をたっぷり取り入れられる家です
*洋室はそれぞれ6~9帖あり、広さ十分です
*エコキュート採用のオール電化住宅です
| 最寄駅 | JR日豊本線 財光寺駅 徒歩10分 徒歩800m |
|---|---|
| 住所 | 日向市大字財光寺中ノ丸 |
| 価格 | 3,330万円 |
| 間取 | 4LDK (101.85m2) |
| 築年月 | 2026年2月 |
ローンシミュレーション
毎月のご返済額
- 円
- お借入金額 - 万円
- 金利 - %
- - 年ローン で計算
※現行金利(1.1%)の計算例です。金利は変更される場合がございます。
※ローン適用ができない物件もございます。詳細はお問合せ下さい。
物件の詳細情報
| 物件名 | \2026年2月完成予定/財光寺平屋住宅 5号地 ★仲介手数料無料★ | 種別 | 新築戸建 |
|---|---|---|---|
| 住所 | 宮崎県日向市大字財光寺中ノ丸 | 学校区 | 財光寺小学校(830m) 財光寺中学校(590m) |
| 交通 | JR日豊本線 財光寺駅 徒歩10分 徒歩800m | 方角 | - |
| 価格 | 3,330万円 | うち消費税 | - |
| 間取 | 4LDK | 間取詳細 | LDK24.7、洋9、洋6.2、洋6,和4.5 |
| 駐車場 | 有 | 2台目駐車場 | 有 |
さらに詳細を表示する
| 築年月 | 2026年2月 | 構造 | 木造 |
|---|---|---|---|
| 建物階層 | 地上1階建て | 利回り | - |
| 面積測定方式 | 公簿 | 土地面積 | 267.18m2(80.82坪) |
| 建物面積 | 101.85m2(30.8坪) | 私道面積 | - |
| 用途 | 一低 | 建ぺい率 | 50% |
| 容積率 | 100% | 土地権利 | 所有権 |
| 建築条件 | - | セットバック | 無 |
| 国土法 | - | その他法令 | - |
| 地目 | 宅地 | 都市計画 | 市街 |
| 地勢 | 平坦 | 接道状況 | 一方 |
| 接道種別 | 公道 | 位置指定道路 | 選択 |
| 接道方向 | 西14m | 接道接面 | - |
| 取引態様 | 一般媒介 | 現況 | 未完成 |
| 引渡時期 | 2026年2月 完成予定 | 借地料 | - |
| 借地期間 | - | 施設費用 | |
| 設備・条件 | 電気、水道、浄化槽、オール電化、モニター付きインターフォン、2台駐車可 、室内洗濯機置場、 フローリング、 クローゼット、 ウォークインクローゼット、 照明、 シューズボックス 、対面キッチン、IH、食器洗浄機 、バス・トイレ別、ユニットバス、シャワー、風呂、水洗トイレ、洋式トイレ、和式トイレ、洗浄便座、洗面化粧台、シャンプードレッサー 、給湯、仲介手数料無し | ||
| 備考 | |||
