◆緑ヶ丘2丁目中古住宅
登録日:2026/01/29 最終更新日:2026/01/30
・南中区域に築9年の中古住宅がでました♪
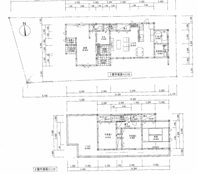
・1階には店舗としても活用できるスペースもあり、様々なご活用方法ができそうです。
・お車も並列で4台ほど停められるスペースがあるため、ご家族やご友人と気兼ねなく集まることができる住まいに♪
・小学校や中学校も近い為、お子様連れの方も安心して生活できそうです♪
| 最寄駅 | JR日豊本線 延岡駅 |
|---|---|
| 住所 | 延岡市緑ヶ丘2丁目 |
| 価格 | 3,480万円 |
| 間取 | 3LDK (122.5m2) |
| 築年月 | 2017年6月 |
ローンシミュレーション
毎月のご返済額
- 円
- お借入金額 - 万円
- 金利 - %
- - 年ローン で計算
※現行金利(1.1%)の計算例です。金利は変更される場合がございます。
※ローン適用ができない物件もございます。詳細はお問合せ下さい。
物件の詳細情報
| 物件名 | ◆緑ヶ丘2丁目中古住宅 | 種別 | 中古戸建 |
|---|---|---|---|
| 住所 | 宮崎県延岡市緑ヶ丘2丁目 | 学校区 | 緑ケ丘小学校(400m) 南中学校(100m) |
| 交通 | JR日豊本線 延岡駅 | 方角 | 西 |
| 価格 | 3,480万円 | うち消費税 | - |
| 間取 | 3LDK | 間取詳細 | リビング18畳、店舗部分12帖、2階子ども部屋①6.7帖、子供部屋②5.5帖、和室約10帖 |
| 駐車場 | 有 | 2台目駐車場 | 有 |
さらに詳細を表示する
| 築年月 | 2017年6月 | 構造 | 木造 |
|---|---|---|---|
| 建物階層 | 地上2階建て | 利回り | - |
| 面積測定方式 | 公簿 | 土地面積 | 210.6m2(63.7坪) |
| 建物面積 | 122.5m2(37.05坪) | 私道面積 | - |
| 用途 | ニ中 | 建ぺい率 | 60% |
| 容積率 | 200% | 土地権利 | 所有権 |
| 建築条件 | - | セットバック | |
| 国土法 | - | その他法令 | - |
| 地目 | 宅地 | 都市計画 | 市街 |
| 地勢 | 平坦 | 接道状況 | 一方 |
| 接道種別 | 公道 | 位置指定道路 | 選択 |
| 接道方向 | 西8m | 接道接面 | 10m |
| 取引態様 | 媒介 | 現況 | 居住中 |
| 引渡時期 | 相談 | 借地料 | - |
| 借地期間 | - | 施設費用 | |
| 設備・条件 | |||
| 備考 | バリアフリー、オール電化 トイレ2ヶ所 ☆1階に約6坪(トイレ付)のスペースあります |
||
この物件のアクセスマップ
物件のお問い合わせ先
このはな不動産
TEL:0982-35-1758
FAX:0982-20-8181
〒882-0836 宮崎県延岡市恒富町4丁目20番地
営業時間 9:00~18:00 祝(定休)/日(不定休)
宅地建物取引業許可 宮崎県知事(2)第4966号
※お問合わせの際は「ホームページを見た」とお伝えください。
※各種状況と現況に差異がある場合は、現況優先となります。