F・浜町分譲B棟モデル【ZERO-CUBE+BOX】
登録日:2025/12/19 最終更新日:2025/12/19
*ツーバイフォー工法で、地震の揺れや台風の強風などの外力に対し、優れた強度と耐久性を発揮します。
*樹脂とLOW-E複層ガラスにより国内最高基準の断熱性で省エネ効果を発揮するAPWを標準装備!
*クルマでキーレスが主流になっているように、玄関ドアの鍵の開け閉めもキーレス仕様となっております。
*主に安心安全、国内有名メーカーパナソニック住宅設備製品を標準装備としております。
| 最寄駅 | JR日豊本線 延岡駅 徒歩15分 徒歩1100m |
|---|---|
| 住所 | 日向市浜町2丁目 |
| 価格 | 2,900万円 |
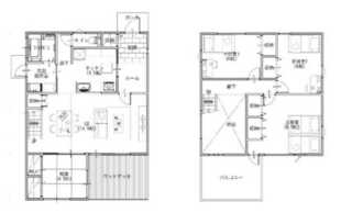
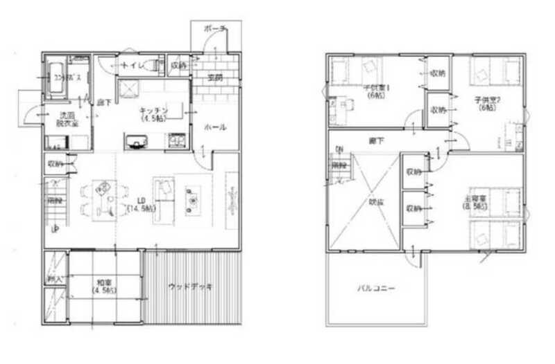
| 間取 | 4LDK (108.47m2) |
| 築年月 | 2024年8月 |
ローンシミュレーション
毎月のご返済額
- 円
- お借入金額 - 万円
- 金利 - %
- - 年ローン で計算
※現行金利(1.1%)の計算例です。金利は変更される場合がございます。
※ローン適用ができない物件もございます。詳細はお問合せ下さい。
物件の詳細情報
| 物件名 | F・浜町分譲B棟モデル【ZERO-CUBE+BOX】 | 種別 | 中古戸建 |
|---|---|---|---|
| 住所 | 宮崎県日向市浜町2丁目 | 学校区 | |
| 交通 | JR日豊本線 延岡駅 徒歩15分 徒歩1100m | 方角 | - |
| 価格 | 2,900万円 | うち消費税 | - |
| 間取 | 4LDK | 間取詳細 | 洋8.5、洋6、洋6、和4.5、LDK19 |
| 駐車場 | 2台目駐車場 |
さらに詳細を表示する
| 築年月 | 2024年8月 | 構造 | - |
|---|---|---|---|
| 建物階層 | 地上2階建て | 利回り | - |
| 面積測定方式 | - | 土地面積 | 212.26m2(64.2坪) |
| 建物面積 | 108.47m2(32.81坪) | 私道面積 | - |
| 用途 | - | 建ぺい率 | 60% |
| 容積率 | 200% | 土地権利 | - |
| 建築条件 | - | セットバック | |
| 国土法 | - | その他法令 | - |
| 地目 | - | 都市計画 | - |
| 地勢 | - | 接道状況 | - |
| 接道種別 | - | 位置指定道路 | - |
| 接道方向 | 接道接面 | - | |
| 取引態様 | 媒介 | 現況 | 完成済み |
| 引渡時期 | 相談 | 借地料 | - |
| 借地期間 | - | 施設費用 | |
| 設備・条件 | 電気、水道、公共下水、オール電化、モニター付きインターフォン、バルコニー、専用庭、テラス、3台以上駐車可 、室内洗濯機置場、 フローリング、 クローゼット、 収納、 エアコン、 照明、 シューズボックス 、システムキッチン、対面キッチン、IH 、バス・トイレ別、1坪バスルーム、シャワー、風呂、追焚機能、洋式トイレ、洗浄便座、暖房便座、洗面化粧台 、2x4工法 | ||
| 備考 | |||
この物件のアクセスマップ
物件のお問い合わせ先
このはな不動産
TEL:0982-35-1758
FAX:050-3172-4357
〒882-0836 宮崎県延岡市恒富町4丁目20番地1F
営業時間 9:00~18:00 水・祝(定休)/日(不定休)
宅地建物取引業許可 宮崎県知事(2)第4966号
※お問合わせの際は「ホームページを見た」とお伝えください。
※各種状況と現況に差異がある場合は、現況優先となります。