ル・グラン大塚中央
登録日:2026/05/01 最終更新日:2026/05/01
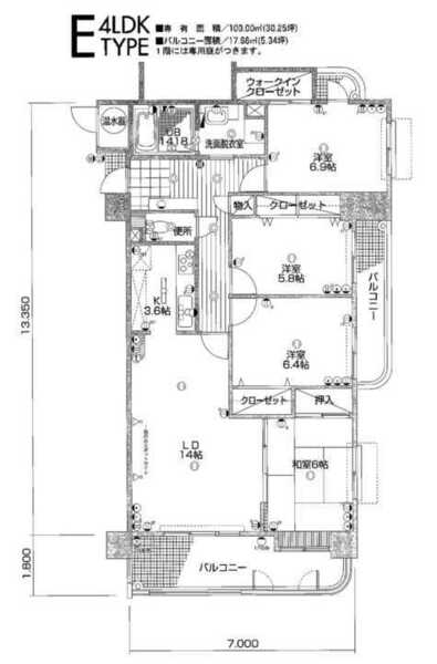
♡壁芯100㎡の広々4LDK!ゆとりあるファミリー向け住戸です。
♡LD約14帖の開放的な空間で、家族みんながくつろげます!
♡各居室に収納完備!荷物が多くてもスッキリ暮らせます。
♡バス停徒歩約5分、生活利便性の整った住みやすい住環境です!
| 最寄駅 | JR日豊本線 宮崎駅 徒歩46分 徒歩3645m / 宮崎交通バス 大塚神社前 下車 徒歩2分 |
|---|---|
| 住所 | 宮崎市大塚町宮田 |
| 価格 | 2,080万円 |
| 間取 | 4LDK (100m2) |
| 築年月 | 2000年6月 |
ローンシミュレーション
毎月のご返済額
- 円
- お借入金額 - 万円
- 金利 - %
- - 年ローン で計算
※現行金利(1.1%)の計算例です。金利は変更される場合がございます。
※ローン適用ができない物件もございます。詳細はお問合せ下さい。
物件の詳細情報
| 物件名 | ル・グラン大塚中央 | 種別 | 中古マンション |
|---|---|---|---|
| 住所 | 宮崎県宮崎市大塚町宮田 | 学校区 | 大塚小学校(260m) 大塚中学校(260m) |
| 交通 | JR日豊本線 宮崎駅 徒歩46分 徒歩3645m / 宮崎交通バス 大塚神社前 下車 徒歩2分 | バルコニー方向 | 南 |
| 価格 | 2,080万円 | うち消費税 | - |
| 管理費 | 10,000円 | 修繕積立金 | 15000円 |
| 間取 | 4LDK | 間取詳細 | 洋6.9、洋6.4、洋5.8、和6、LDK17.6 |
| 駐車場 | 有(4,000円/月) | 2台目駐車場 |
さらに詳細を表示する
| 築年月 | 2000年6月 | 構造 | SRC |
|---|---|---|---|
| 階建 | 地上6階 / 地上10階建 | 総戸数 | 50戸 |
| 面積測定方式 | 公簿 | 専有面積 | 100m2(30.25坪) |
| バルコニー面積 | 17.66m2(5.34坪) | 利回り | - |
| 用途 | 一住 | 土地権利 | 所有権 |
| 国土法 | - | その他法令 | - |
| 取引態様 | 一般媒介 | 現況 | 空家 |
| 引渡時期 | 即時 | 借地料 | - |
| 借地期間 | - | 施設費用 | |
| 管理組合 | - | 形態 | 全面委託 |
| 管理人 | 無 | 会社名 | 長谷工コミュニティ九州 |
| 設備・条件 | 電気、水道、公共下水、モニター付きインターフォン、オートロック、ベランダ、バルコニー、エレベータ、駐輪場、バイク置場 、室内洗濯機置場、 クローゼット、 収納 、システムキッチン、IH 、バス・トイレ別、シャワー、風呂、水洗トイレ、洋式トイレ、洗浄便座、暖房便座、洗面化粧台 、給湯 | ||
| 備考 | |||
この物件のアクセスマップ
物件のお問い合わせ先
このはな不動産
TEL:0982-35-1758
FAX:0982-20-8181
〒882-0836 宮崎県延岡市恒富町4丁目20番地
営業時間 9:00~18:00 祝(定休)/日(不定休)
宅地建物取引業許可 宮崎県知事(2)第4966号
※お問合わせの際は「ホームページを見た」とお伝えください。
※各種状況と現況に差異がある場合は、現況優先となります。